新築
【鹿児島市】紫原EXモデルハウス
【2026年6月OPEN】建築家デザイン×避難所レベルの強さ。 田丸ハウスが贈る、次世代のモデルハウスが誕生します。 パナソニックの「テクノストラクチャーEX」による圧倒的な耐震性能と、プロの建築家が手掛ける意匠性。 まさに「性能もデザインも妥協したくない」方のための、特別仕様の一棟です。 鹿児島の風土に適した、夏涼しく冬暖かい高性能な暮らしをここからはじめてみませんか?
物件概要
- 所在地
- 鹿児島市紫原4丁目4-9
- 価格
- 3,480万円
- 土地面積
- 公簿124.62㎡
- 延床面積
- 93.60㎡
- 交通
- 紫原中央バス停 徒歩3分
- 校区
- 西紫原小学校・西紫原中学校
- 備考
- 第鹿建1250860
物件詳細
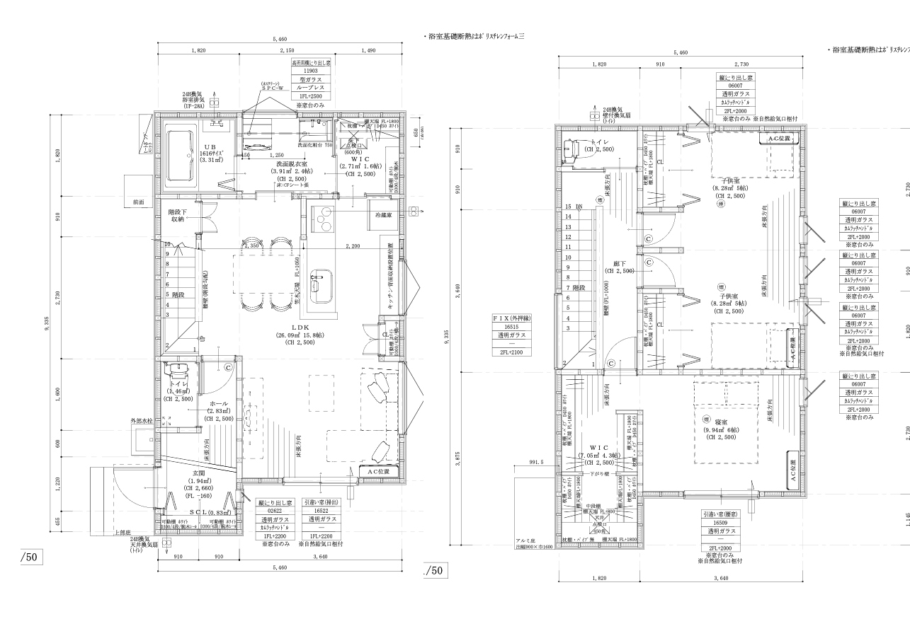
- 間取り
- 3LDK(LDK15.8・洋6・洋5×2)
- 構造
- 木造二階建
- 工法
- テクノストラクチャー工法
- 現況
- 建築中
- 引渡し
- 相談
- 取引態様
- 売主
周辺施設
Warning: Undefined array key "所在地" in /home/xs104659/tamaruhouse.com/public_html/wp-content/themes/tamaru/single-realestate.php on line 144
物件所在地:鹿児島市紫原4丁目4-9


